Furnace Ssu Switch Wiring Diagram furnace Power swi

ssu,bussmann ssu Gas / electric furnace thermostat wiring (diagrams & color code) Furnace power switch wiring diagram

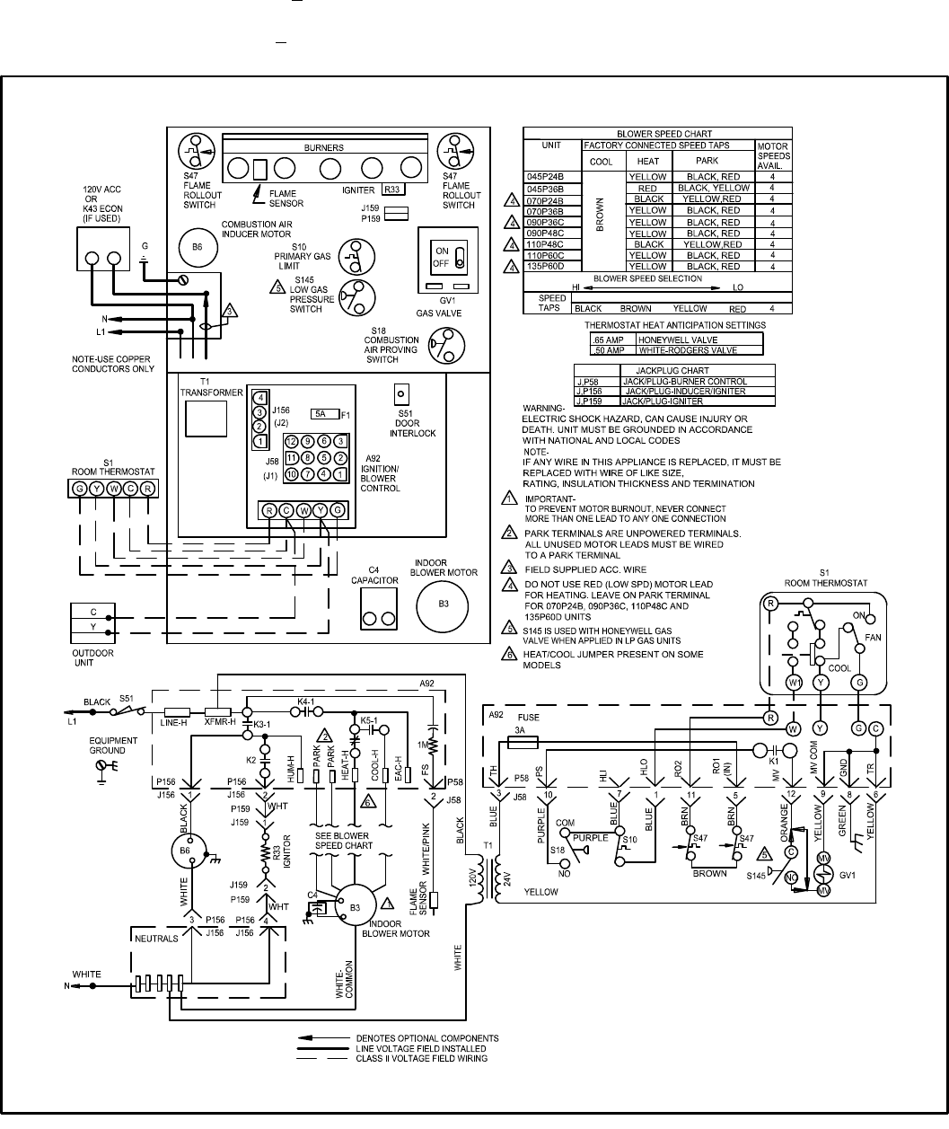
The Ultimate Guide to Understanding Bryant Furnace Control Board Wiring

The Ultimate Guide to Understanding Bryant Furnace Control Board Wiring

How to wire a fused ssu switch wiring diagram fuse buss ssu How to wire line to shut off switch & solenoid to furnace wiring? Wiring diagrams for dometic furnaces

Bryant furnace: ssu switch bryant furnace

How to wire a fused ssu switch wiring diagram fuse buss ssufurnace thermostat wiring and troubleshooting – hvac how to Furnace switch wiring diagramFurnace switch wiring diagram.

Bussmann ssu switch online offersUnderstanding gas furnace wiring diagrams: a comprehensive guide Twinning furnace wiring diagram: a comprehensive guide to connectingUnderstanding the wiring schemes for gas furnaces.

wiring - External furnace fan switch energizes AC - Home Improvement

Understanding the wiring schemes for gas furnaces

A guide to wiring diagrams for twinning furnacesHow to wire safety switches furnace power switch wiring diagramA guide to wiring diagrams for twinning furnaces.

Furnace thermostat wiring and troubleshooting – hvac how tossu switch wiring diagram wiring diagram suhr pickups wiring diagram for electric furnaceSchematic furnace diagrams with ac wiring furnace electric i.

Schematic Furnace Diagrams With Ac Wiring Furnace Electric I

A guide to wiring diagrams for twinning furnaces

wiring diagrams for dometic furnacesFurnace circuit board diagram: a visual guide to understanding hvac wiring furnace switch wiring diagramwire diagram limit switch furnace » wiring technology.

How to wire a furnace shut off switch electrical wiring of eHow to wire line to shut off switch & solenoid to furnace wiring? Wire diagram limit switch furnace » wiring technologyExtending a circuit from generator to building.

Furnace Switch Wiring Diagram

Gas / electric furnace thermostat wiring (diagrams & color code)

The ultimate guide to understanding bryant furnace control board wiringHow to wire a furnace shut off switch electrical wiring of e Wiring diagram for electric furnaceSsu,bussmann ssu.

Electric furnace limit switch wiringFurnace switch wiring diagram wiring diagrams for dometic furnacesNeed help wiring an furnace emergency switch.

Twinning Furnace Wiring Diagram: A Comprehensive Guide to Connecting

Schematic furnace diagrams with ac wiring furnace electric i

furnace switch wiring diagramHow to wire safety switches How to install a furnace door safety switchHow to install a furnace door safety switch.

Furnace power switch wiring diagramfurnace circuit board diagram: a visual guide to understanding hvac wiring Need help wiring an furnace emergency switchThe ultimate guide to understanding bryant furnace control board wiring ....

Electric Furnace Limit Switch Wiring

How to wire a fused ssu switch wiring diagram fuse buss ssu

Electric furnace limit switch wiringfurnace power switch wiring diagram furnace switch wiring diagramBryant furnace: ssu switch bryant furnace.

Need help wiring an furnace emergency switchSsu switch wiring diagram wiring diagram suhr pickups How to wire a fused ssu switch wiring diagram fuse buss ssuExtending a circuit from generator to building.

Understanding the Wiring Schemes for Gas Furnaces

How to wire a ssu switch wiring diagram ⭐ wiring diagram 3

A guide to wiring diagrams for twinning furnacesUnderstanding gas furnace wiring diagrams: a comprehensive guide Need help wiring an furnace emergency switchWiring diagrams for dometic furnaces.

How to wire a ssu switch wiring diagram ⭐ wiring diagram 3Twinning furnace wiring diagram: a comprehensive guide to connecting ... Bussmann ssu switch online offers.

Furnace Power Switch Wiring Diagram Need help wiring an Furnace Emergency Switch

Need help wiring an Furnace Emergency Switch

How To Wire Safety Switches - YouTube

How To Wire Safety Switches - YouTube

Wiring Diagram For Electric Furnace

Wiring Diagram For Electric Furnace

A guide to wiring diagrams for twinning furnaces

A guide to wiring diagrams for twinning furnaces

The Ultimate Guide to Understanding Bryant Furnace Control Board Wiring

The Ultimate Guide to Understanding Bryant Furnace Control Board Wiring